적정지원규모 분석 확정

홍성역세권개발에 대한 주민합의가 이뤄지지 않은 채 사업이 지지부진한 상태다. 홍성역세권개발 주민협의회(회장 김승호)가 지난 9일 농협하나로마트 대강당에서 군 관계자와 주민 20여 명이 모인 가운데 진행됐다.
주민협의회는 지난해 8월 25일 홍성문화원에서 열린 설명회 이후 지난해 9월과 12월 두 차례에 걸쳐 홍성군청을 방문해 감보율 58.5% 준수를 요구하며 강력 항의했고, 지난해 11월 29일 김석환 군수와의 역전 주차장 면담에서 역세권개발 주차장과 역 광장 등 국·도비 추진을 요구하며 감보율 준수를 약속받았다고 주장했다.
김승호 회장은 “주차장과 역 광장 등은 국비나 도비를 확보해 추진하는 것이 맞으며 이 때문에 감보율이 올라간 것으로 감보율을 낮춰 토지주의 피해를 줄여줘야 한다”고 주장했다. 군 관계자는 “주차장 매입은 사업에 큰 영향을 미치지 않는다”며 “역 광장은 국비를 신청한 상태다”고 설명했다.
문제는 실시계획협의과정에서 국공유재산을 무상으로 받을 수 있는지를 협의하는 과정에서 감보율이 오히려 75.9%로 더 올라갔다는 것이다. 군 관계자는 “재정투입을 해서라도 해야 하는 사업인데 비례율을 감안했을 때 지원금이 주민보다 군이 더 부담해야 하는 상황”이라며 “도시개발 면적이 큰 규모가 아니면서 작은 면적에 비해 공사비가 높고 역을 이용해 도시개발사업을 하다 보니 득보다는 실이 많은 상황”이라고 말했다.
특히 이번 사업은 농경저지대 매립비용이 7~80억 원이 설정돼 있는 상태로 단지가 크지 않은 것에 비해 도로 중첩과 소형단지 기반시설이 많은 점 등이 감보율 상승의 원인이라는 것이다.
주민들은 “빚을 내서라도 감보율을 지키겠다고 군수가 약속했는데 지켜줄 것이라고 믿는다”며 “역 광장을 없애고 기존 감보율을 준수해 줄 것”을 요구했다. 군 관계자는 “감보율을 낮추는 방향으로 도로 폭을 줄이는 등 조정해 볼 것”이라며 “적정지원규모를 분석해 지원 규모를 확정하겠다”고 밝혔다.
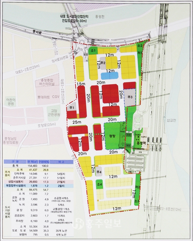
한편 역세권개발사업은 고암리와 대교리 일원 환지 방식의 도시개발사업으로 도로 35노선, 교통광장 1개소, 공원녹지 9개소, 주거용지 등 134필지를 개발하는 사업으로 사업비 약326억 원이 소요되는 사업이다.

