
지난 2017년부터 추진된 역세권개발사업이 토지소유자들의 반대에 부딪히면서 난항을 겪고 있다.
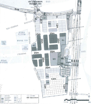
홍성군역세권개발사업은 고암3,4구 홍성역 일원에 대한 환지방식의 도시개발사업으로 지난해 1월 군 관리계획으로 구역 지정 및 개발계획을 승인 신청하고 지난해 5월 주민설명회를 통해 57.8%의 감보율을 적용한 환지방식으로 토지소유자의 동의서를 받았다. 그러나 이후 소유자들에게 아무런 고지나 공람 없이 감보율 70.3%로 30% 떨어졌고, 이에 대해 소유자들이 반발하고 나선 것이다.
군은 지난 4일 홍성문화원에서 홍성역세권 도시개발사업 주민설명회를 개최하면서 지난달 27일 승인사항 보고를 거쳐 주민설명회를 가지게 됐으며, 공사비 절감과 효율적 환지계획 방식으로 개발이익이 토지주에게 돌아가도록 노력할 것이라고 설명했다.
역세권개발협의회 김승호 회장은 “인가를 빨리 받기 위해 주민 공람 없이 올린 것 아니냐”라며 “1차 설명회 때 제시한 감보율을 지켜주고 그렇지 않다면 우리는 동의서를 모두 철회할 것”을 주장했다.
안양에서 온 한 토지소유자는 “개발 이익이 언제 날지도 미지수인 상태에서 설명회를 하는 것도 이해가 되지 않는다”라며 “군이나 도에서 아무런 지원도 없이 토지소유자에게 땅을 내놓으라고 하는 것은 아니라고 생각한다”고 밝혔다. 이에 대해 도시개발팀 김대겸 팀장은 “개발이익은 환지 처분하면서 가액에 플러스 알파를 붙여 나타난다”며 “지가상승으로 인한 시세 차이를 말하는 것이 아니라는 것을 누차 얘기했다”고 설명했다.
안성에서 온 다른 주민은 “역세권이 개발되면 그 이익이 토지소유자들에게만 가는 것이 아니라 향후 군에도 이익이 발생하며, 군이 많은 부분 사업비 일부를 지원해야 한다고 생각한다”며 “협의과정 절차에서 군이 가지게 되는 이익을 바탕으로 책임과 비용 등을 염두에 두고 일을 처리해 줄 것”을 요구했다. 도시개발팀 김대겸 팀장은 “현재로서는 군의 지원 계획은 없다”고 밝혔다.
도시재생과 김종현 과장은 “당초 계획보다 보완 연구해달라는 의견으로 귀결되는 것 같다”며 “어떤 방법이 있는지 다각적으로 연구해 검토 의견 등을 설명하는 기회를 마련하겠다”고 밝혔다.

